Le projet
Le projet se situe en fond de cour derrière un bâtiment d’habitation datant de la seconde moitié du XIXème siècle.
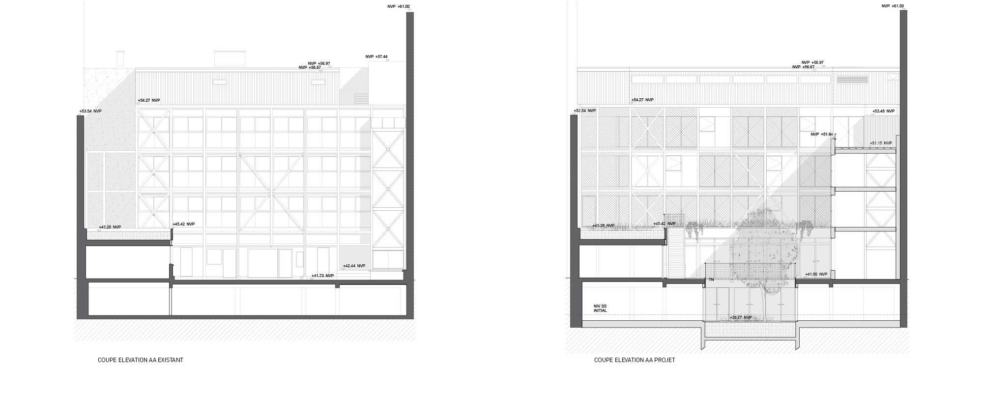
La restructuration porte sur un ancien immeuble de bureaux des années 1990, composé d’un corps principal de trois étages + mezzanine sur RDC, et d’une aile en retour en RDC.
L’actuelle façade du corps principal est caractérisée par un exosquelette métallique avec poteaux, contreventements et croix de saint André apparents, actuellement peints en bleu. Derrière cette structure, la façade est composée de menuiseries aluminium avec remplissages opaques ou vitrés, fixés entre dalles, en état vétuste. Le rez-de-chaussée est très hétérogène et dépareillé.
La cour, revêtue de béton, sert de lieu de stockage à des conteneurs de déchets ménagers. Une partie de la cour, devant l’entrée principale du bâtiment de bureaux, est séparée du reste de la cour par une clôture grillagée de couleur verte. De ce côté, se trouve une jardinière en béton, qui accueille un arbre. Quelques marches d’escalier en béton permettent d’accéder au bâtiment.
Le projet prévoit principalement :
– La conservation et la réhabilitation du bâtiment de bureaux
– Le prolongement du corps de bâtiment R+3+combles jusqu’à la limite Nord, et la prolongation de sa toiture jusqu’à la limite Sud, lui donnant une cohérence de volume
– L’ajout d’une aile en R+2 dans la parenthèse côté Sud qui abritera, à rez-de-chaussée, le hall du bâtiment de bureaux et un local déchets. Cette aile jouera le rôle de raccord entre le bâtiment d’habitation et le bâtiment de bureaux. Elle est projetée dans la continuité du volume de l’excroissance R+2 existante
– La création d’un patio d’éclairement du sous-sol. Ce patio recevra un traitement végétal
– L’aménagement de la cour
La volumétrie des extensions projetées s’inscrit dans une logique de complémentarité de l’existant. Ainsi, l’ensemble des bâtiments existants et projetés encadrent la cour. L’aile Sud constitue une quatrième façade, en continuité de l’excroissance existante. L’extension Nord contribue elle-aussi à la cohérence d’ensemble, avec un corps de bâtiment qui s’étend d’un seul tenant le long de la limite de fond de parcelle, et d’une limite latérale à l’autre.
Le creux du patio créé vient s’insérer au pied du corps principal. Un niveau en-dessous du niveau d’accès, sa végétalisation en pleine terre et l’arbre qu’il accueille contribuent à la végétation perceptible depuis la cour. Une passerelle légère est créée au-dessus de lui, ce qui autorise un cheminement continu dans la cour et autour du patio.
Pour harmoniser la façade de ce bâtiment des années 1990, nous avons pris les partis suivants : la structure reste apparente et reçoit la même teinte que l’ensemble des éléments de menuiserie métalliques, serrurerie et habillages métalliques. Ce volume devient un bloc uni de teinte gris brun, en harmonie avec les enduits blanc chaud et la végétation. La façade sur cour est agrémentée de cadres en serrurerie à motif floral qui ont la fonction de brise-soleils et écrans d’intimité vis-à-vis du bâtiment d’habitation.
La façade du rez-de-chaussée est détachée de celle des étages par une jardinière formant bandeau, en métal de même teinte. La toiture est prévue remplacée par une toiture en bac acier de teinte gris brun.
La façade de l’extension R+2 au Sud reçoit, en étages courants, un enduit de teinte blanc chaud en lien avec l’immeuble d’habitation. Les ouvertures sont de même type que celles du corps de bâtiment principal, créant le dialogue et signifiant l’appartenance à une même entité. Le rez-de-chaussée, partiellement en recul, reçoit un revêtement doré et texturé en harmonie avec ces teintes chaudes et signifie l’entrée. La toiture, de type toiture-terrasse, est traitée en lames de bois.










